Das Doppelkubushaus – Designkompetenz Schwarz auf Weiß
Beim Doppelkubushaus ist der Name Programm, denn der versetzte Baukörper erweckt den Eindruck, das Haus bestünde aus zwei aneinandergrenzenden Kuben. Die Fassadengestaltung verstärkt diesen Eindruck: Auf einer Seite findet sich eine klassische Putzfassade und auf der anderen Seite eine graue Holzverschalung. Jeder Hausteil schließt nach oben hin durch ein Pultdach ab. So entsteht die geniale Optik eines versetzten Pultdachhauses. Besonders clever: Die Garage ist in entgegengesetzter Abfolge gestaltet.
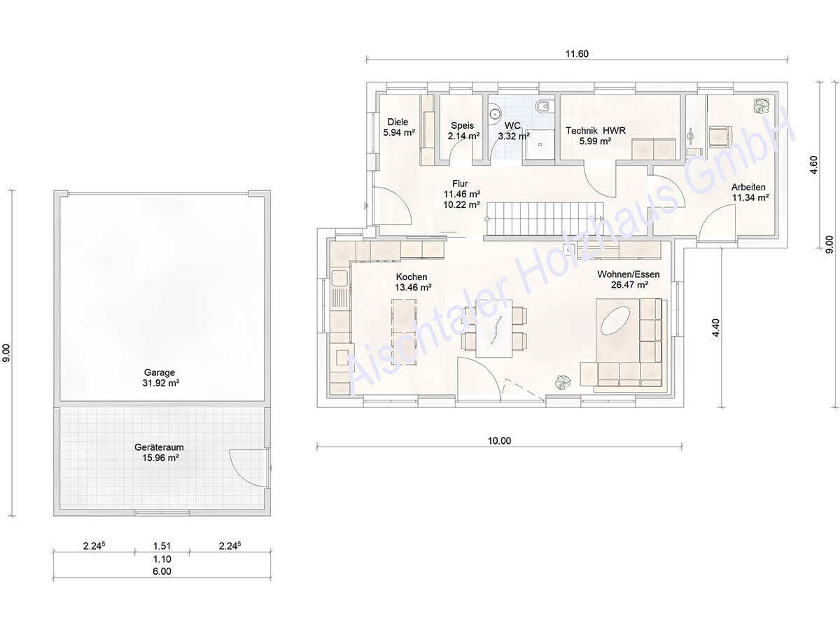
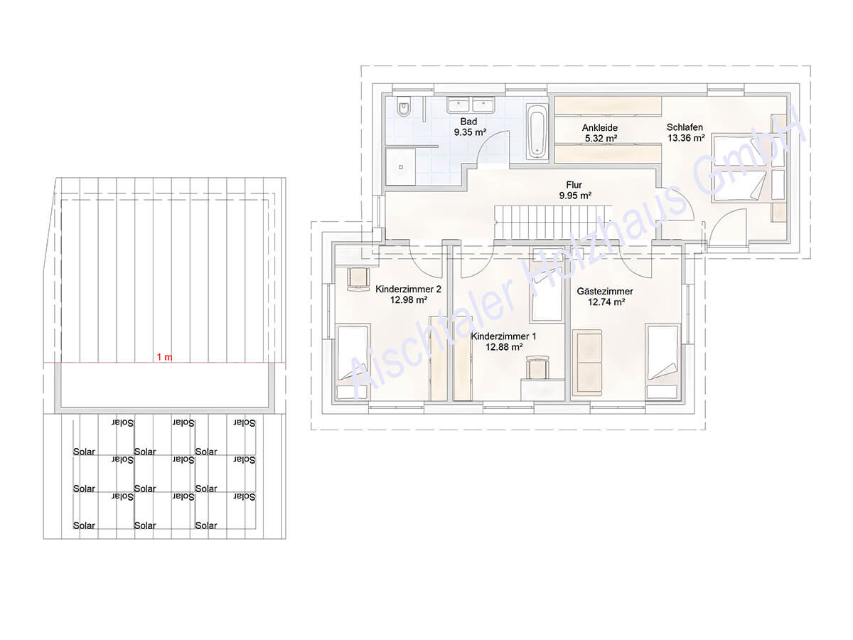
Aber auch das Hausinnere überzeugt. 150 m2 Wohnfläche, unterteilt in 8 Zimmer, werden äußerst energieeffizient beheizt, so dass das Gebäude als Effizienzhaus 40+ eingestuft werden kann.

Technische Details
Haustyp |
Das Doppelkubushaus |
Wohn-/ Nutzfläche |
ca. 150 m² |
Anzahl Zimmer |
8 |
Besonderheiten |
versetzte Baukörper, PV-Anlage, graue Holzverschalung, Garage mit Zwischenboden, KFW 40+ |
Grundriss
Erdgeschoss

Obergeschoss
