Das Landhaus – Modernes Wohnen im ländlichen Idyll
Das Landhaus bezeichnet in diesem Fall weniger das Design, sondern vielmehr die markante Lage: weite Fläche, viel Grün, ruhiger Charakter. Dort galt es ein Haus zu errichten, das sich baulich harmonisch in die Umgebung einfügt. Trotzdem sieht es modern aus. Das Endergebnis überzeugt: Mit ca. 210 m² Wohn- und Nutzfläche, 7 Zimmern und einer angebauten Garage erfüllt das Landhaus alle Bedürfnisse der Baufamilie. Dank des KfW 40 Standards punktet das Haus nicht nur optisch, sondern auch in Sachen Energieeffizienz. Hier wird modernes Wohnen mit ländlichem Lebensgefühl perfekt kombiniert – ein Ort, an dem man den Alltag hinter sich lassen kann.

Technische Details
Haustyp |
Das Landhaus |
Wohn-/ Nutzfläche |
ca. 210 m² |
Anzahl Zimmer |
7 |
Besonderheiten |
Angebaute Garage, KFW 40, Walmdach |
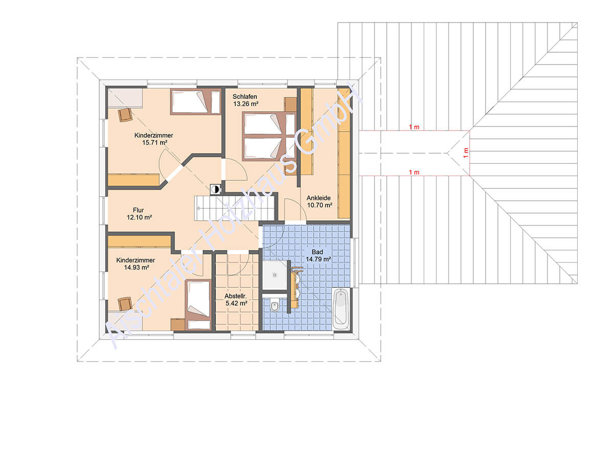
Grundriss
Erdgeschoss

Obergeschoss
