Das Freiraum-Haus – Moderne Architektur mit Wohlfühlfaktor
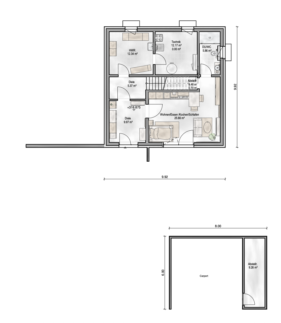
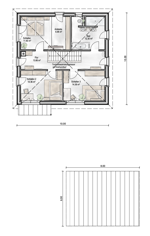
Mit ca. 208 m² Wohnfläche zeichnet sich das Freiraum-Haus vor allem durch ein weitläufiges Raumkonzept aus. Im Mittelpunkt des Hauses steht der großzügige Wohn-, Ess- und Kochbereich. Offen gestaltet und verbunden durch eine zentrale Küche, wird er zum Treffpunkt für die ganze Familie. Großflächige Fenster lassen Tageslicht in die Räume und eröffnen weite Ausblicke ins Grüne. Ein besonderes Highlight ist das Panoramafenster mit integrierter Sitznische – ein Ort zum Lesen, Zurücklehnen und Entspannen. Im Hanggeschoss ergänzt die separate Einliegerwohnung mit eigenem Zugang und direktem Terrassenzugang das Wohnkonzept – ideal für Gäste, Großeltern oder zur Vermietung. Holzelemente wie der geschützten Eingangsbereich, die stilvolle Lamellenwand und die Böden prägen die Atmosphäre des Hauses. So wird dieses Aischtaler Holzhaus zu einem Zuhause, das Stil und Geborgenheit auf harmonische Weise verbindet.
Technische Details
|
Haustyp |
Das Freiraum-Haus |
|
Wohn-/ Nutzfläche |
ca. 208m² |
|
Anzahl Zimmer |
10 |
|
Besonderheiten |
Einliegerwohnung im Keller, offener Ess-Wohn-Kochbereich, große Fenster |
Grundriss
Erdgeschoss
Kellergeschoss
Dachgeschoss


