Das Naturnah-Haus – mehr Wohnfläche dank cleverer Planung
Das ca. 160 m² große Naturnah-Haus denkt den Landhausstil modern. Mit klarer Formsprache und warmen Holzelementen, wie der Holzverschalung im Obergeschoss, fügt das Gebäude sich optimal in die Atmosphäre der umliegenden Natur ein. Das versetzte Pultdach verleiht ihm eine Portion Charme und der großzügige Wintergarten mit Glasfront lässt viel Licht ins Innere. Dort sorgen eine sichtbare Holzdecke mit offenen Balken, für eine behagliches Wohngefühl. Der offene Grundriss schafft fließende Übergänge zwischen Koch-, Ess- und Wohnbereich. Das Dachgeschoss kann als separate Wohneinheit genutzt werden – ideal für Familie, Gäste oder zur Vermietung. Ein Doppelcarport mit integrierter Gartenhütte ergänzt das stimmige Gesamtkonzept dieses charaktervollen Hauses.
Technische Details
|
Haustyp |
Das Naturnah-Haus |
|
Wohn-/ Nutzfläche |
ca. 160m² |
|
Anzahl Zimmer |
7 |
|
Besonderheiten |
OG Holzverschalt, versetztes Pultdach, Wintergarten mit Glasfront, Doppelcarport mit Gartenhütte, mögliche zweite Wohneinheit im DG |
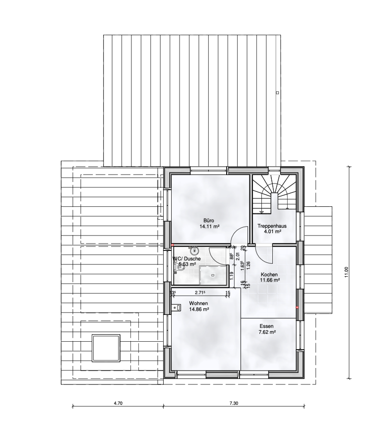
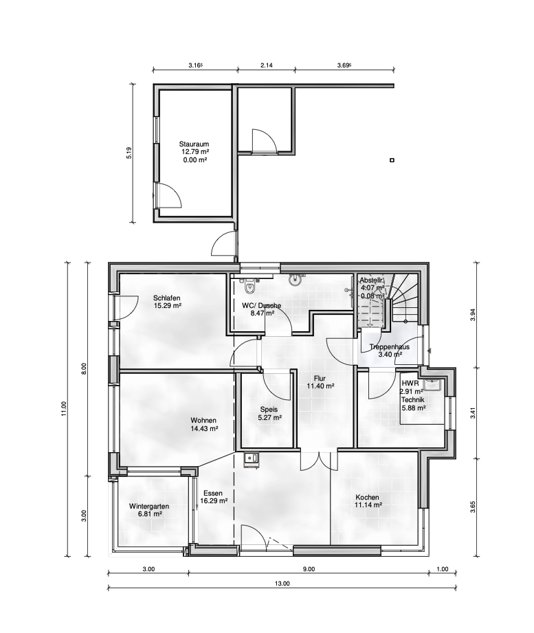
Grundriss
Erdgeschoss
Dachgeschoss


