Das Tandemhaus – Ein Bungalow für zwei Familien
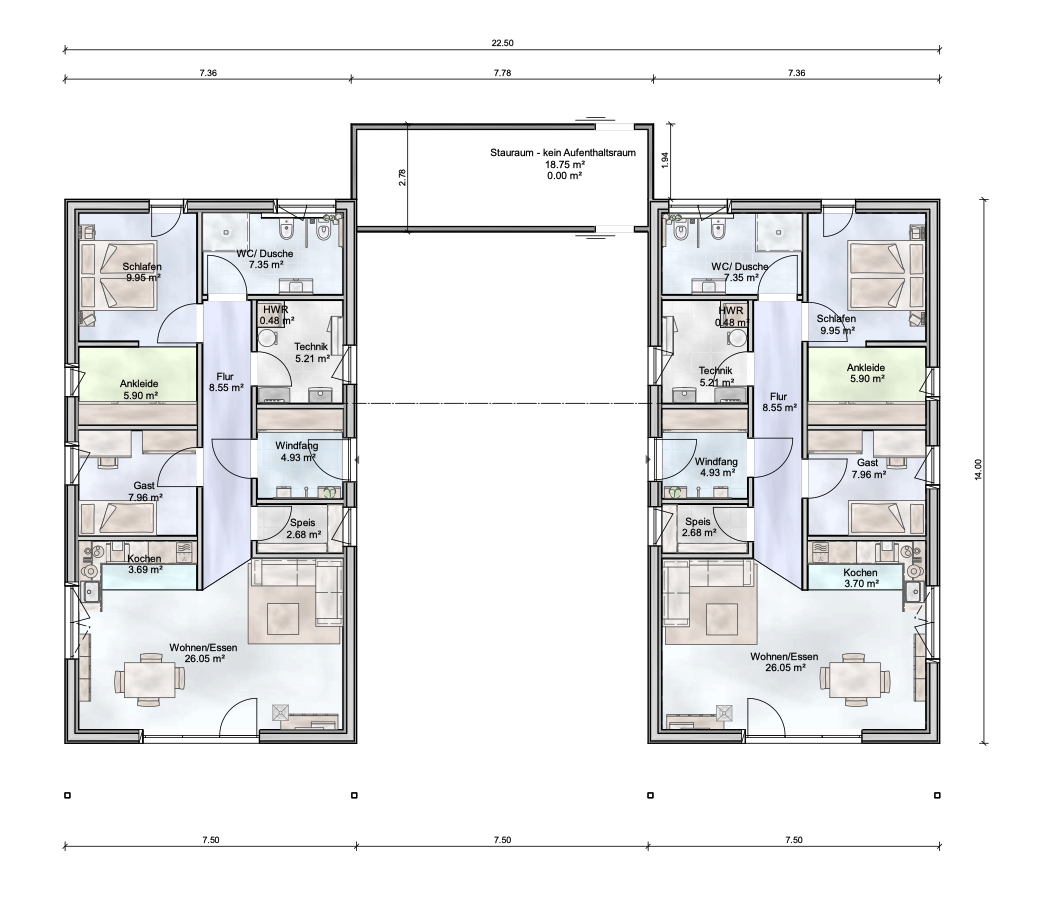
Dieser moderne Doppelbungalow verfügt über zwei eigenständige Wohneinheiten auf einer Ebene mit insgesamt rund 165 m² Wohnfläche und zehn Zimmern. Klare Formen, helle Räume und ein stimmiges Zusammenspiel von Funktion und Wohnlichkeit prägen das Gesamtbild. Beide Einheiten des Tandemhauses verfügen über einen eigenen Eingang und großzügige Fensterflächen, die viel Tageslicht ins Haus lassen. Die barrierefreie Gestaltung inklusive eines rollstuhlgerechten Bades sorgt für maximalen Komfort – heute und in Zukunft. Praktisch verbunden sind die beiden Bungalows über einen Carport mit gemeinsamem Abstellraum: wettergeschützt, nah am Eingang und funktional geplant. Holzböden, helle Küchenbereiche und ruhige Farben schaffen im Innern der beiden Zwillingshäuser eine angenehme Atmosphäre, die Geborgenheit verspricht.
Technische Details
|
Haustyp |
Das Tandemhaus |
|
Wohn-/ Nutzfläche |
ca. 165m² |
|
Anzahl Zimmer |
10 |
|
Besonderheiten |
Doppelbungalow für 2 Wohneinheiten, Carport mit gemeinsamem Abstellraum, 2 separate Terrassen mit Überdachung, rollstuhlgerecht |
Grundriss
Erdgeschoss
Dachansicht


